
Bureau d'Ingénierie et Etudes Techniques:
Bâtiment TCE & Génie Civil
* Cette offre inclut la mise à disposition en en permanence 6j/7 sur votre site en travaux de notre technicien spécialisé bâtiment + mise à disposition de notre ingénieur génie civil comme support technique & administratif depuis nos bureaux à Casablanca
*Inclus une mission complète : @ Réception Coffrage/Ferraillage @ Suivi des travaux TCE @ Ordonnancement Pilotage Coordination des travaux (OPC) en TCE @ Réception des Travaux en Tous Corps d'Etat (TCE)
Mission Suivi de Chantier à partir de 9 000 dhs / mois*
★★★★★
©PMCM X 2025-2026 / CASABLANCA
Nos Services Techniques
Bureau d'ingénierie spécialisé en bâtiment et génie civil, offrant des solutions sur mesure à chaque client
Ingénierie Bâtiment


Conception et réalisation de projets de construction adaptés à vos besoins spécifiques




Études Techniques
Analyse approfondie et études techniques pour garantir la qualité et la sécurité des projets.
Assisant Technique Maître d'Ouvrage (AMO)
Accompagnement expert pour vos projets d'ingénierie et de construction.
Votre partenaire en ingénierie technique
Nous sommes un bureau d'ingénierie spécialisé dans le bâtiment et le génie civil, offrant des études techniques de haute qualité pour des projets innovants et durables


+77
+114
Expertise & Etudes Techniques reconnue
Clients nous ont fait confiance
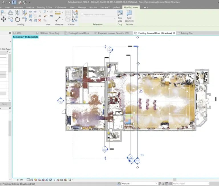
Visite virtuelle 360°de votre projet
+ Plan Etage topographique 2D + nuage de points LIDAR Laser 3D pour BIM architecture
à partir 5000 dhs*
ou 30 dhs/m2
Nous transformons vos projets immobiliers grâce à des contenus numériques de haute qualité 2D/3D et une expérience technologique immersive et unique via nos caméras dernière technologie LASER LIDAR pour BIM ARCHITECTURE




Capture laser LiDar en 3D
Grâce à notre technologie laser LIDAR 3D, nos agents peuvent présenter des biens de manière vivante et précise, offrant une expérience immersive qui facilite la simulation 3D des projets en rénovation ou phase gros oeuvre
Images Projets Immobiliers Avancées
Levé topographique 2D/3D très précis
+ Modélisation nuage de points via Laser LIDAR pour BIM ARCHITECTURE






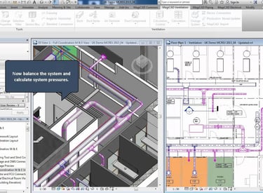
Vidéos Projets Immobiliers Avancés
Levé topographique 3D très précis
+ Modélisation nuage de points via Laser LIDAR pour BIM ARCHITECTURE
Nos Projets
Découvrez nos réalisations en ingénierie et études techniques


Projets Innovants
Solutions techniques pour le bâtiment et génie civil


Expertise Technique
Analyse et conception optimale de structures




Collaboration Active
Partenariats pour des projets d'envergure réussis
Réalisations Clés
Projets emblématiques dans le domaine du bâtiment & Promotion Immobilière & génie civil
→
→
→
→
Contactez-nous
Nous sommes à votre écoute pour vos projets en ingénierie.
Ingénierie du futur:
Bureau d'études techniques en bâtiment et génie civil
NOS COORDONNEES:
Votre Contact:
Mail: contact@pmcm-x.com
Tél: (+212) 07 06 09 04 74
© 2025-2026. All rights reserved.
Siège: 201, Rue Mustapha El Mâani, Etage 2, Appt 12, 20130 Casablanca , MAROC
RC N° : 593493 /CASABLANCA
ICE N°: 003335125000023
Identifiant Fiscal (IF) N°: 53928008
Patente N°: 34265463
